DRAG

Orchid Developers, one of the first developers to offer freehold commercial and residential projects in Bahrain, has already delivered more than 175 units of residential and commercial properties to customers.

Get In Touch

img

Orchid Business Center,

Block No. 428, Seef,

P.O. Box 24252, Muharraq,
Kingdom of Bahrain.

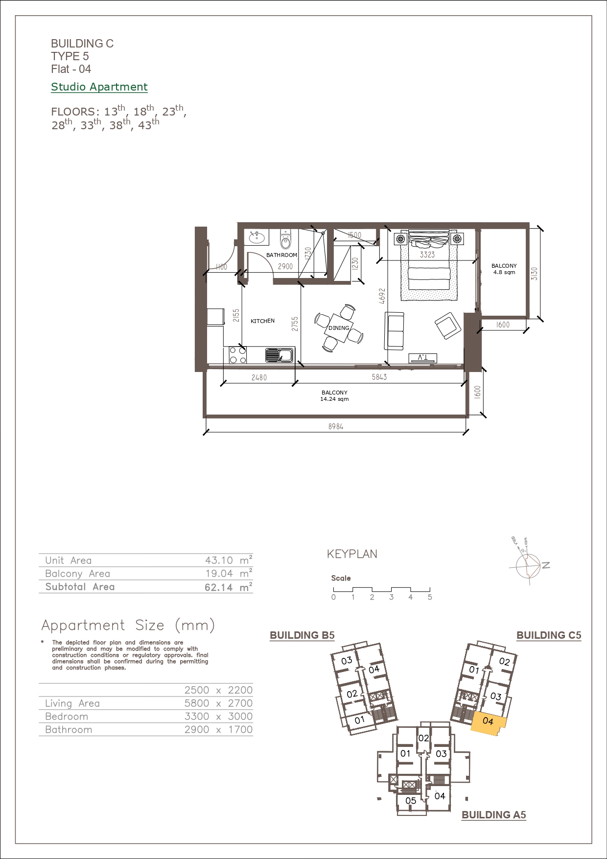
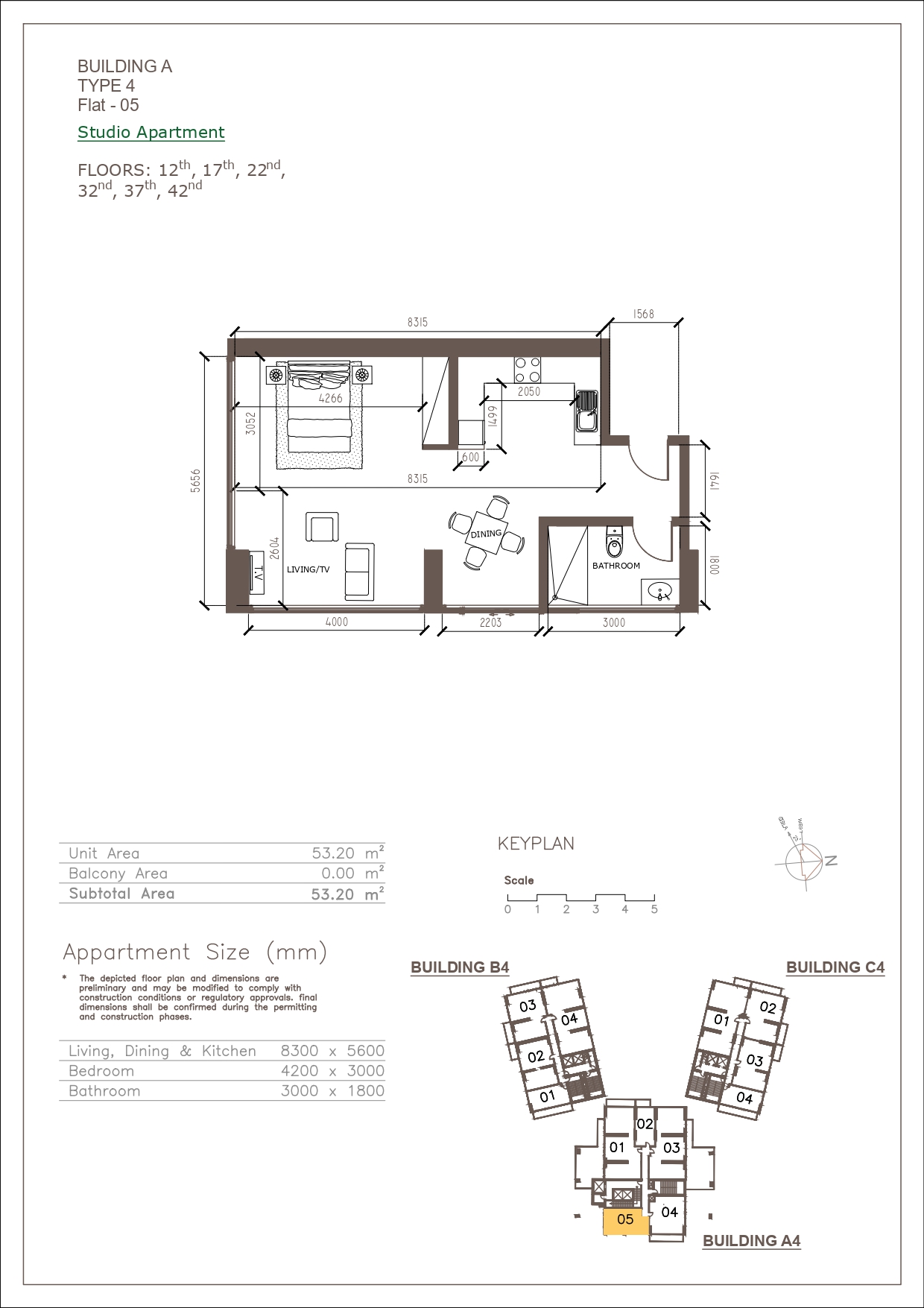
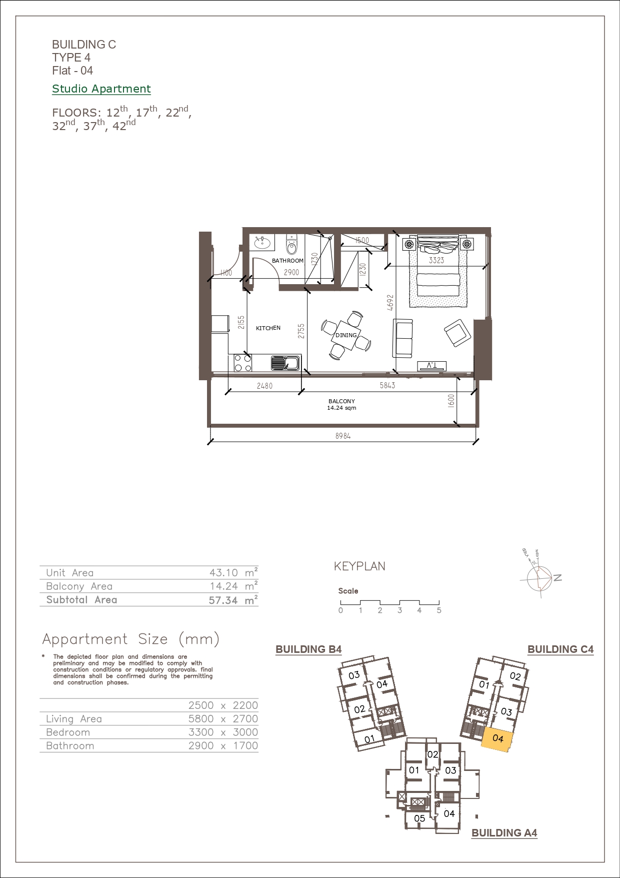
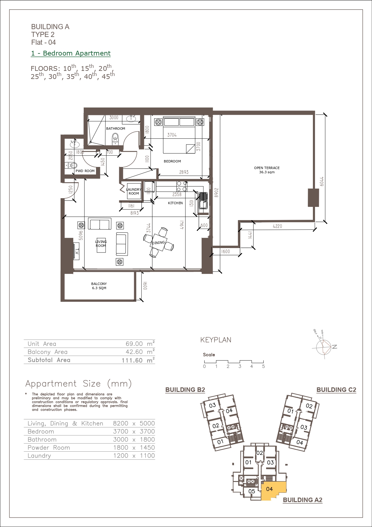
Orchid Bahrain Bay

  • Home
  • Orchid Bahrain Bay

Skyline living by Orchid

Rising above Bahrain Bay, Orchid’s 47-story beach-side residences redefine modern urban living. This iconic development blends architecture with premium lifestyle features. With a panoramic view and refined interiors, every detail offers a perfect balance of comfort and sophistication. More than a residence, it’s a visionary address at the peak of Bahrain’s skyline.

Located in the heart of Bahrain Bay, residents enjoy panoramic water views, lush promenades, and direct access to top dining, retail, and culture. Just minutes from Bahrain Financial Harbour, The Avenues, and Manama city center, this vibrant address offers beauty and unmatched convenience.

Property Images

img
img
img
img
img
Image
Image
Image
Image
Image